Модульный дом с парной по каркасной технологии в стиле Барн. Баня полностью укомплектована и оснащена всем необходимым.
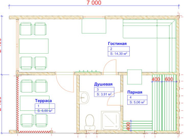
Включает в себя четыре зоны:
- гостиная 14,4 м2;
- парная – 5,06 м2;
- дешевая – 3,91 м2;
- терраса – 6 м2
Габариты 4,8х7,0 метров.
Комплектация
| КАРКАС: | |||||
| Обвязка из пакета досок 150х50 - 2 шт (доски сшиваются по елочной системе) крепятся на гвозди и дополнительно на скобы | |||||
| Каркас стен из сухой доски, сечением 100х50 (сорт АВ) обработан огнебиозащитой Bioteks | |||||
| Каркас кровли из сухой доски, сечением 150х50 (сорт АВ) обработан огнебиозащитой Bioteks | |||||
| Контробрешетка | |||||
| Черновой пол: Доска 25х100 камерной сушки обработанная огнебиозащитой Биотекс (ель); | |||||
| Пол утеплен Каменной ватой 150 мм в два слоя в нахлест | |||||
| Утеплитель стен - Каменная вата 100 мм в два слоя в нахлест | |||||
| Утепление кровли Каменная вата 150 мм в два слоя в нахлест | |||||
| Контрейка 20х40мм | |||||
| Мембрана ветро и влагозащита Ондутис | |||||
| Стыковка мембран проклеивается скотчем Тисма | |||||
| Полы-OSB 12 мм | |||||
| Перегородки выполнены из сухой доски 100х50мм с утеплением 100мм в два слоя в нахлест | |||||
| Сетка от грызунов | |||||
| Приступок в 3 ступени (учитываем высоту свай) | |||||
| ОКНА И ДВЕРИ: | |||||
| Окна ПВХ белые: 800х1800мм - 3 шт (два в комнате отдыха и одно в спальне) | |||||
| Форточка ПВХ белая: 500х400мм - 1 шт (в сан.узле) | |||||
| Входная группа ПВХ белая: панорамная стеклопакет + дверь 900х2100мм | |||||
| НАРУЖНЯЯ ОТДЕЛКА: | |||||
| Наружняя отделка Имитация бруса 19х140х6000 | |||||
| Покраска на два слоя пропиткой Пинотекс или профлист С-20 цвет ГРАФИТ (или комбинирование) | |||||
| КРЫША: | |||||
| Профлист цвет ... 0,5мм профиль С20, капельники и коньковая планка | |||||
| ЭЛЕКТРИКА: | |||||
| Выключатель - 1 шт | |||||
| Автомат 16 Am | |||||
| Двойная розетка - 2 шт | |||||
| Светильник светодиодный (150 Вт) - 3 шт | |||||
| ПАРНАЯ: | |||||
| В парной отделка стен отражающей пароизоляцией Изоспан, все стыки проклеены фольгированным скотчем |
|||||
| Отделка стен в парной Осиновой вагонкой (сортАБ) через стык | |||||
| Обработка внутренних стен и пола пропиткой Экосауна | |||||
| Сливной желоб их ПВХ трубы | |||||
| Утепление пола: пенополистирол -150 мм. | |||||
| Полок в парной: Двухуровненый, сорт А (осина), верхний 60-65см, нижний 40-45см; | |||||
| Подспинники осиновая вагонка сорт АВ | |||||
| Печь банная TMF компакт 2017, бак с краном, печной набор, притопочный лист | |||||
| Вынос топки (улица, комната отдыха), притопочный лист | |||||
| Камни для печи, 2 уп | |||||
| Ограждение около печи | |||||
| Минерит на керамических втулках | |||||
| Приточно-вытяжной клапан в парной 1 шт. | |||||
| Форточка дерево 300х400мм в парном отделении 1 шт | |||||
| Дверь в парную: 1900х700, жаропрочная, стеклянная матовая Бронза, 8 мм, три петли; | |||||
| Электрика провод NYM 2х2,5мм | |||||
| Термостойкий керамический светильник 1 шт. с абажуром |
Обсудите ваши вопросы с экспертом по строительству
Не откладывайте свою мечту на потом – закажите быстровозводимый дом или баню уже сегодня