Модульная баня по каркасной технологии в стиле Сканди. Баня полностью укомплектована и оснащена всем необходимым.
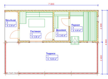
Включает в себя четыре зоны:
- комната отдыха с мебелью
- парное отделение
- помывочное отделение
- терраса
Линейный размер данной бани 4,8х7,0 метров.
Выполнена с полной отделкой со всеми комплектующими.
Максимально современный дизайн.
Комплектация
| Каркас | ||||||
| Каркас из сухой строганной доски, сечением 100х50 (сорт АВ) | ||||||
| Каркас обработан огнебиозащитой Bioteks | ||||||
| Пол утеплен пенополистиролом 100 мм | ||||||
| Утеплитель стен и крыши -Каменная вата 100 мм | ||||||
| Мембрана ветро и влагозащита Ондутис | ||||||
| Стыковка мембран проклеивается скотчем Тисма | ||||||
| В парной и помывочной уложена гидроизоляция фирмы ТехноНиколь | ||||||
| Сетка от грызунов | ||||||
| Приступок (высота согласовывается с Заказчиком после монтажа винтовых свай) | ||||||
| Окна и двери | ||||||
| В комнате отдыха панорамное и полупанорамное окно с ламинацией | ||||||
| В парной окно дерево 500х1400мм - 1 шт | ||||||
| Межкомнатная дверь стеклянная 8мм 1900х700 - 2 шт (бронза матовая 3 петли) | ||||||
| Окна ПВХ в комнате отдыха 60й профиль цвет ..., 2-х камерное остекление | ||||||
| Входная группа ПВХ 1800х900мм цвет ..., профиль 70й, 2-х камерное остекление | ||||||
| Печь | ||||||
| Печь TMF Compact 2017 или GrillD с печным набором черного матового цвета | ||||||
| Притопочный лист | ||||||
| Вынос топки (улица, помывочная, комната отдыха) | ||||||
| Камни для печи - 2 уп | ||||||
| Ограждение около печи | ||||||
| Минерит на керамических втулках | ||||||
| Внутренняя отделка | ||||||
| В парной отделка стен отражающей пароизоляцией Изоспан, все стыки проклеены фольгированным скотчем | ||||||
| Отделка стен в парной и помывочном отделении обита Осиновой вагонкой (сортАБ) через стык | ||||||
| Обработка внутренних стен в парной и помывочной пропиткой Экосауна | ||||||
| Отделка стен в комнате отдыха Имитация бруса 19х140х6000 | ||||||
| Покраска стен и потолка в комнате отдыха пропиткой Пинотекс | ||||||
| ПолкИ осиновые сорт АВ | ||||||
| Подспинники осиновая вагонка сорт АВ | ||||||
| Сливной желоб в парной и помывочном отделении из ПВХ трубы | ||||||
| Пол-сухая строганная шпунтованная доска | ||||||
| Пол в помывочном отделении и парной обрабатывается Экосауной | ||||||
| Приточный клапан в каждом отделении по 1 шт | ||||||
| В помывочном отделении встроенный душевой поддон | ||||||
| Электрика | ||||||
| В парной и помывочном отделении -скрытая ВВГНГ ГОСТ, в комнате отдыха - ретро или скрытая проводка | ||||||
| В парной светодиодная лента - 2шт, в помывочном отделении светодиодная лента - 1шт | ||||||
| В комнате отдыха 2 розетки двойные, выключатель двойной - 1шт, светильник светодиодный 600 мм. | ||||||
| Мебель | ||||||
| В комнате отдыха стол деревянный переносной (круглый) 90х90см - 1 шт и стулья деревянные - 2 шт | ||||||
| В парной - двухуровневые полки или парящий один | ||||||
| Помывочное отделение - скамейка- 1 шт | ||||||
| Наружняя отделка | ||||||
| Имитация бруса 19х140х6000, профлист С20 или комбинирование | ||||||
| Покраска фасада на два слоя пропиткой Пинотекс или Биотонер | ||||||
| Крыша | ||||||
| Профлист цветной 0,5мм профиль С20, капельники | ||||||
| Водосточная система | ||||||
| Коньковая планка для бани в стиле БАРН |
Обсудите ваши вопросы с экспертом по строительству
Не откладывайте свою мечту на потом – закажите быстровозводимый дом или баню уже сегодня